Property Details
Interior Details
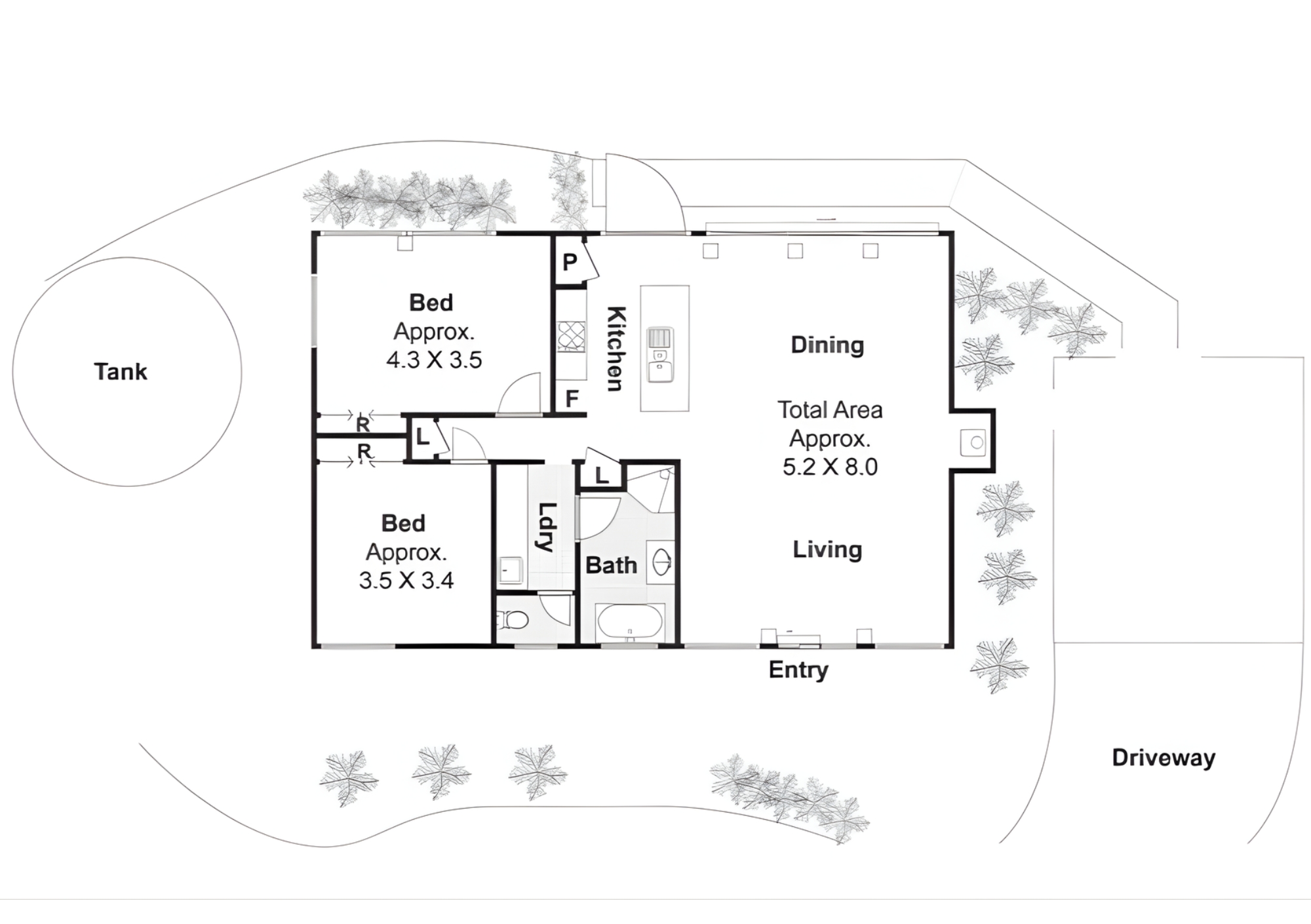
Rooms details
Bedroom
2
Bathroom
2
Kitchen
1
Living
1
Garage
Property Size
Property Size
Building Area
100
m2
Structure
Total Floors
1
Thank you! Your submission has been received!
Oops! Something went wrong while submitting the form.






